Parlak Dental Clinic
BOStudio’s Parlak Dental Clinic in Istanbul artfully blends aesthetics and functionality through rounded walls and continuous lighting, creating a fluid spatial experience that prioritizes comfort, privacy, and natural illumination.
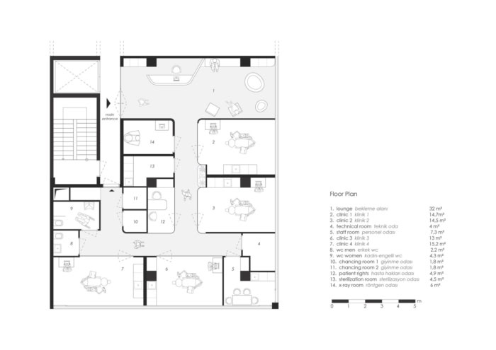
Parlak Dental Clinic is conceived as a space where aesthetics and functionality seamlessly converge. Within its compact footprint, the design employs rounded walls and continuous lighting to generate a fluid spatial sequence, extending from the entrance to the treatment rooms. These soft, curving surfaces dissolve rigid boundaries, establishing uninterrupted perspectives and intuitively guiding circulation along the main axis.
The treatment rooms are positioned along the façade, maximizing daylight and natural ventilation, while sterilization, radiology, and staff areas are organized on the opposite side to prioritize privacy and efficiency.Lighting design in the clinic is conceived not only as a functional necessity but also as an architectural tool that integrates with the ceiling to direct circulation.
Concealed lighting and custom ceiling elements guide users naturally through the space while reinforcing its perspective. White walls and glossy lacquered doors enhance the perception of sterility and quality, while elements detached from the ceiling and floor add a subtle guiding effect.Furniture pieces are designed to appear slightly detached from both the floor and side walls, creating a sense of lightness and elegance while maintaining functional clarity.
Parlak Dental Clinic is conceived as a space where aesthetics and functionality seamlessly converge. Within its compact footprint, the design employs rounded walls and continuous lighting to generate a fluid spatial sequence, extending from the entrance to the treatment rooms. These soft, curving surfaces dissolve rigid boundaries, establishing uninterrupted perspectives and intuitively guiding circulation along the main axis.
The treatment rooms are positioned along the façade, maximizing daylight and natural ventilation, while sterilization, radiology, and staff areas are organized on the opposite side to prioritize privacy and efficiency.Lighting design in the clinic is conceived not only as a functional necessity but also as an architectural tool that integrates with the ceiling to direct circulation.
Concealed lighting and custom ceiling elements guide users naturally through the space while reinforcing its perspective. White walls and glossy lacquered doors enhance the perception of sterility and quality, while elements detached from the ceiling and floor add a subtle guiding effect.Furniture pieces are designed to appear slightly detached from both the floor and side walls, creating a sense of lightness and elegance while maintaining functional clarity.
Parlak Dental Clinic is conceived as a space where aesthetics and functionality seamlessly converge. Within its compact footprint, the design employs rounded walls and continuous lighting to generate a fluid spatial sequence, extending from the entrance to the treatment rooms. These soft, curving surfaces dissolve rigid boundaries, establishing uninterrupted perspectives and intuitively guiding circulation along the main axis.
The treatment rooms are positioned along the façade, maximizing daylight and natural ventilation, while sterilization, radiology, and staff areas are organized on the opposite side to prioritize privacy and efficiency.Lighting design in the clinic is conceived not only as a functional necessity but also as an architectural tool that integrates with the ceiling to direct circulation.
Concealed lighting and custom ceiling elements guide users naturally through the space while reinforcing its perspective. White walls and glossy lacquered doors enhance the perception of sterility and quality, while elements detached from the ceiling and floor add a subtle guiding effect.Furniture pieces are designed to appear slightly detached from both the floor and side walls, creating a sense of lightness and elegance while maintaining functional clarity. Parlak Dental Clinic is conceived as a space where aesthetics and functionality seamlessly converge. Within its compact footprint, the design employs rounded walls and continuous lighting to generate a fluid spatial sequence, extending from the entrance to the treatment rooms. These soft, curving surfaces dissolve rigid boundaries, establishing uninterrupted perspectives and intuitively guiding circulation along the main axis.
The treatment rooms are positioned along the façade, maximizing daylight and natural ventilation, while sterilization, radiology, and staff areas are organized on the opposite side to prioritize privacy and efficiency.Lighting design in the clinic is conceived not only as a functional necessity but also as an architectural tool that integrates with the ceiling to direct circulation.
Concealed lighting and custom ceiling elements guide users naturally through the space while reinforcing its perspective. White walls and glossy lacquered doors enhance the perception of sterility and quality, while elements detached from the ceiling and floor add a subtle guiding effect.Furniture pieces are designed to appear slightly detached from both the floor and side walls, creating a sense of lightness and elegance while maintaining functional clarity.
In the reception and waiting areas, the desk and seating units echo the language of curved forms, reinforcing the clinic’s architectural identity while ensuring maximum comfort within a compact footprint.The use of green tones is a defining element of the project’s visual hierarchy. Different shades of green, applied across waiting and circulation spaces, enhance the calming atmosphere of the clinic while subtly clarifying the functionality of each zone.
Design: BOStudio
Design Team: Berkan Ozturk
Photography: Hacer Bozkurt



















Now editing content for LinkedIn.